—— 参 赛 图 版 ——



—— 项 目 简 介 & 设 计 说 明 ——
项目名称:武汉新洲万达W1地块双拼公寓样板间室内设计
项目地点:湖北省武汉市新洲区
项目时间:2020年9月
项目面积:162㎡
主材选择:石材、木地板、壁布、树脂
设计说明:
本案是对空间的重新打造,对于两个LOFT公寓的结合。设计师们抓住这个亮点,把空间结构重组,从层高、空间分割、局部挑空入手。带来了更多的空间多样性。此项目为样板间项目,根据地理位置来定位所针对的销售群体。我们面对的大部分群体都为当代年轻人,对于这个年轻又时尚的群体,他们所想要的会是什么呢?是一个面积不用很大但却温馨的空间,是一个可以打破传统,体现新新时代的空间结构。所以根据这些种种所以我们打造出一个这样的空间。
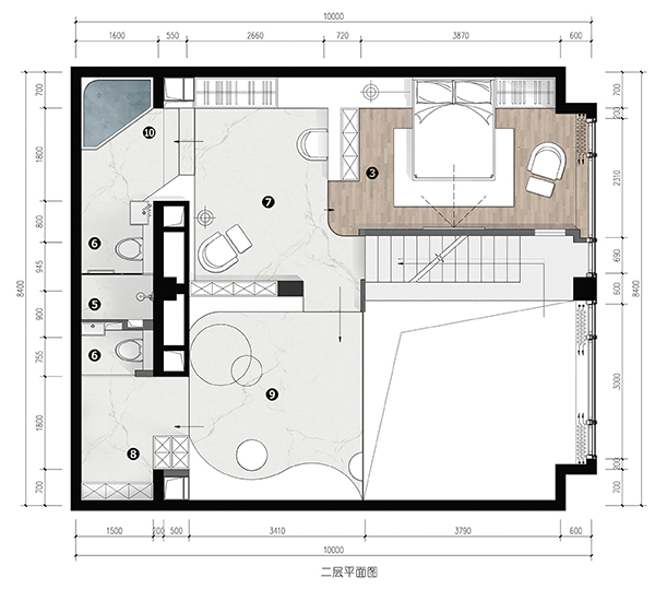
从一楼进门的区域来看,我们运用了一些弧形的元素,从墙面以及顶面的造型到软配的选型,弧形的样式都能让业主有一种柔软舒适的感觉。餐厅中岛可同时满足四个人使用。顶面选择黑色镜面不锈钢,倒映出整个餐厅空间,搭配氛围灯,夜晚此区域便可作为一个小型酒吧来使用。客厅上方便是挑空区域,从一楼到二楼的整面落地窗,为空间带来了完美的采光,阳光可以照射到每一个角落,这也是每个业主都希望满足的一点。楼梯侧墙则是一个通顶的装饰柜体,当业主在客餐厅区域,可以通过依稀的柜体看入卧室区域。整个空间都变得很通透。而在休息的时候,从卧室内部则设有移动隔断,在这个情境之下也可得到一个独立的休息空间。
二楼则是运用层高的不同来分割每个空间的区域以及由此来提升空间的趣味性。同时也解决了原始结构给我们带来的问题。二楼的空间划分为两个大的空间,即为儿童的空间和大人的空间,这两个大空间相对独立也相对关联。起居室内部兼并书房与衣帽间的功能,我们所遵循的设计理念则是我们不定义空间,让每个空间本身去尽显它所有有可能的功能。所以在这个起居室内,它可以有很多不同的情景模式。儿童娱乐区内,因为和挑空区域的相连,这个空间给人带来的感受是更加有趣的,当孩子在这个空间中,也更能解放其天性。所以二楼的空间是一个可以发生很多种可能的空间。
162㎡左右的双拼公寓,有着不同的空间变化感受,体现着住宅的多样性。带来更多的惊喜的居住体验。
—— 设 计 师 简 介 ——
党 正
高级室内设计师、高级工程师、中级工艺美术师
1978年生于大西北甘肃省庆阳市。
2005年7月毕业于西安美术学院环境艺术系环艺专业。
2005-2007年在赛野模型担任设计总监。
2007年创办MAX DESIGN设计公司。
2007-2017年在MAX Design担任执行经理及设计总监。
2016年国家艺术基金关中传统民居保护性创新规划设计研究项目录取学习。
获奖情况:
1,2005年“千年蟾蜍-韩城党家村民俗博物馆”获得西安美术学院环境艺术系2005年毕业创作一等奖;
2,2006年“西安市新城区城市规划展厅”获得西安室内设计大赛金奖;
3,2006年被评为“西安市十佳优秀设计师”;
4,2016年“MAX Design办公空间”获得第三届“锋尚.京瓷杯”新中式大赛公共空间设计二等奖;
5,2016年“MAX Design办公空间”获得第十一届中国国际室内设计双年展银奖;
6,2016年“MAX Design办公空间”获得第九届陕西省室内装饰设计大赛银奖;
7,2016年“阎良热力研发中心” 获得第九届陕西省室内装饰设计大赛优秀奖;
8, 2017年荣获“2017居然杯中国室内设计新人奖”;
9, 2018年荣获“2018·金楠奖·中国国际室内空间设计大赛”优秀奖;
代表作品:
1,千年蟾蜍-韩城党家村民俗博物馆设计
2,西安市新城区城市规划展厅设计
3,咸阳先和国际公馆营销中心设计,景观设计
4,万达民乐园营销中心设计
5,万达东大街新天地营销中心设计
6,重庆动力.时光商业综合体设计
7,西安奔驰利之星4S店设计
8,宝鸡奔驰利之星4S店设计
9,西旅集团朱雀森林公园酒店设计
10,华阴“华岳.凤凰城”景观设计,营销中心设计,样板间设计
11,前程无忧办公室设计
12,乾县皇府会所KTV设计
13,陕西商洛红树林售楼中心设计
14,西京医院美容整形医院
15,(景观规划)陕西榆林靖边龙州丹霞地貌设计方案
16,(景观)咸阳城投时代地产景观设计方案
17,榆林靖边延长石油天和城营销中心设计方案
18,汉唐商业综合体设计方案
19,(景观规划)大荔县沙苑湖设计
20,泾河新城茯茶镇商业街项目(二期)温泉酒店设计
21,九龙邑营销中心设计
22,阎良热力研发中心“关中小院”设计
23,MAX Design办公空间设计
24,江苏南通万达总部办公室设计
25,铜川药王山游客服务中心设计
来自大西北的黄土高原庆阳,醇朴的民风,普通的家庭,培养了我本分做事,老实做人的根本。热爱传统文化,敬畏自然规律,崇尚精神至上的生活。专业是我内心向外的一扇窗口,有呼有吸,感情流露,包罗万象,让心飞翔。